
A planning application (ref 25/01897/OUT) has been made for 20 houses on the Combe Road site.
At their October meeting the Parish Council resolved to object to this proposal. Their reasons can be found at https://stonesfield.online/minutes-october-2025/
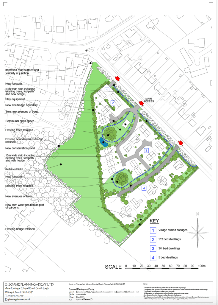
The current proposal is shown above with the original proposal below.. Full details can be found here
The consultation period ends on 25 October (see below).
UPDATE: On 8 October, WODC advised that the comments deadline had been extended to Monday 27 October. This was because the yellow ‘planning notice’ was not displayed until Monday 6 October.
